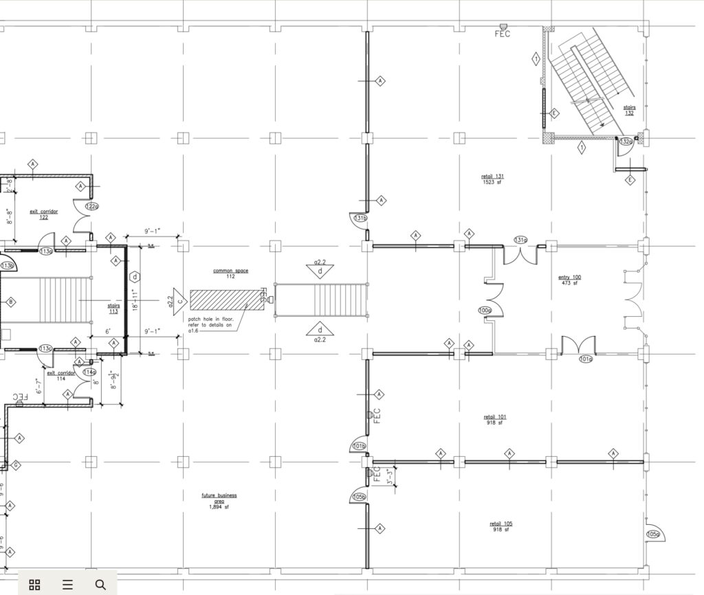
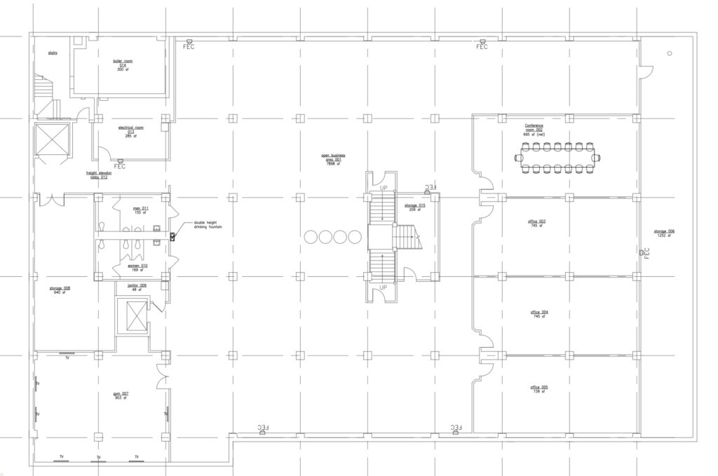
The mixed-use floor plan at 116 E Randolph in Enid, Oklahoma features retail and commercial space on the first floor and shared office space in the basement. This type of layout is becoming increasingly popular in urban areas as it allows for a diverse range of businesses and activities to be housed in one building. The retail and commercial space on the first floor provides visibility and accessibility for customers, while the shared office space in the basement offers a more private and professional environment for businesses and entrepreneurs. This mixed-use floor plan is an efficient use of space and can help to revitalize a neighborhood by bringing in a variety of businesses and people.



